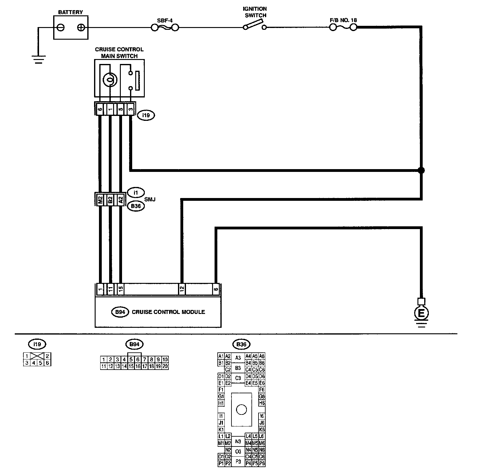
Check Cruise Control Main Switch

Need a step-by-step guide?

Get an AI-powered repair guide with parts lists, cost estimates, and clear instructions for your 2002 Subaru.

AI Repair Guides
CHECK CRUISE CONTROL MAIN SWITCH

TROUBLE SYMPTOM:
Cruise control main switch is not turned ON and cruise control cannot be set.

NOTE: When the main relay (built-in cruise control module) operates, the main switch circuit is in normal condition.
The main relay operation can be checked by hearing the operation sounds.
This operation sounds will be heard when ignition switch and cruise control main switch are turned to ON.

Wiring Diagram:




WIRING DIAGRAM:

Step 1 - 3:




DIAGNOSTIC TROUBLE CODE PROCEDURE