Part 1

Need a step-by-step guide?

Get an AI-powered repair guide with parts lists, cost estimates, and clear instructions for your 1998 Subaru.

AI Repair Guides
DIAGNOSTICS FOR ENGINE STARTING FAILURE





BASIC DIAGNOSTICS CHART

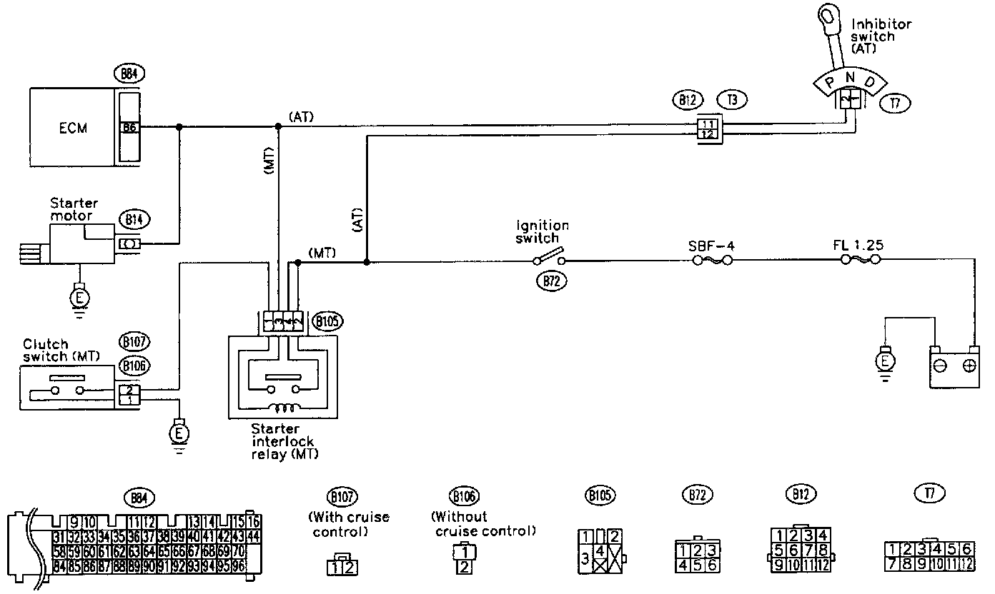
STARTER MOTOR CIRCUIT

1 Of 12:




2 Of 12:




3 Of 12:




4 Of 12:





5 Of 12:




6 Of 12:




7 Of 12:




8 Of 12:





9 Of 12:




1o Of 12:




11 Of 12:




12 Of 12:





CAUTION: After repair or replacement of faulty parts, conduct CLEAR MEMORY and INSPECTION MODES.





WIRING DIAGRAM

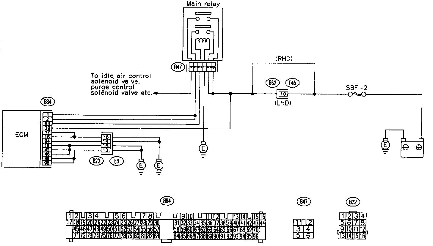
CONTROL MODULE POWER SUPPLY AND GROUND LINE

1 Of 14:




2 Of 14:




3 Of 14:




4 Of 14:





5 Of 14:




6 Of 14:




7 Of 14:




8 Of 14:





9 Of 14:




10 Of 14:




11 Of 14:




12 Of 14:





13 Of 14:




14 Of 14:





CAUTION: After repair or replacement of faulty parts, conduct CLEAR MEMORY and INSPECTION MODES.





WIRING DIAGRAM