Diagram 93/2 (Tracks 1-14)

Need a step-by-step guide?

Get an AI-powered repair guide with parts lists, cost estimates, and clear instructions for your 2006 Audi.

AI Repair Guides





IMPORTANT NOTE:
This manufacturer uses "Track" style wiring diagrams.
For information on how to use these diagrams effectively, please refer to Diagram Information and Instructions. Diagram Information and Instructions


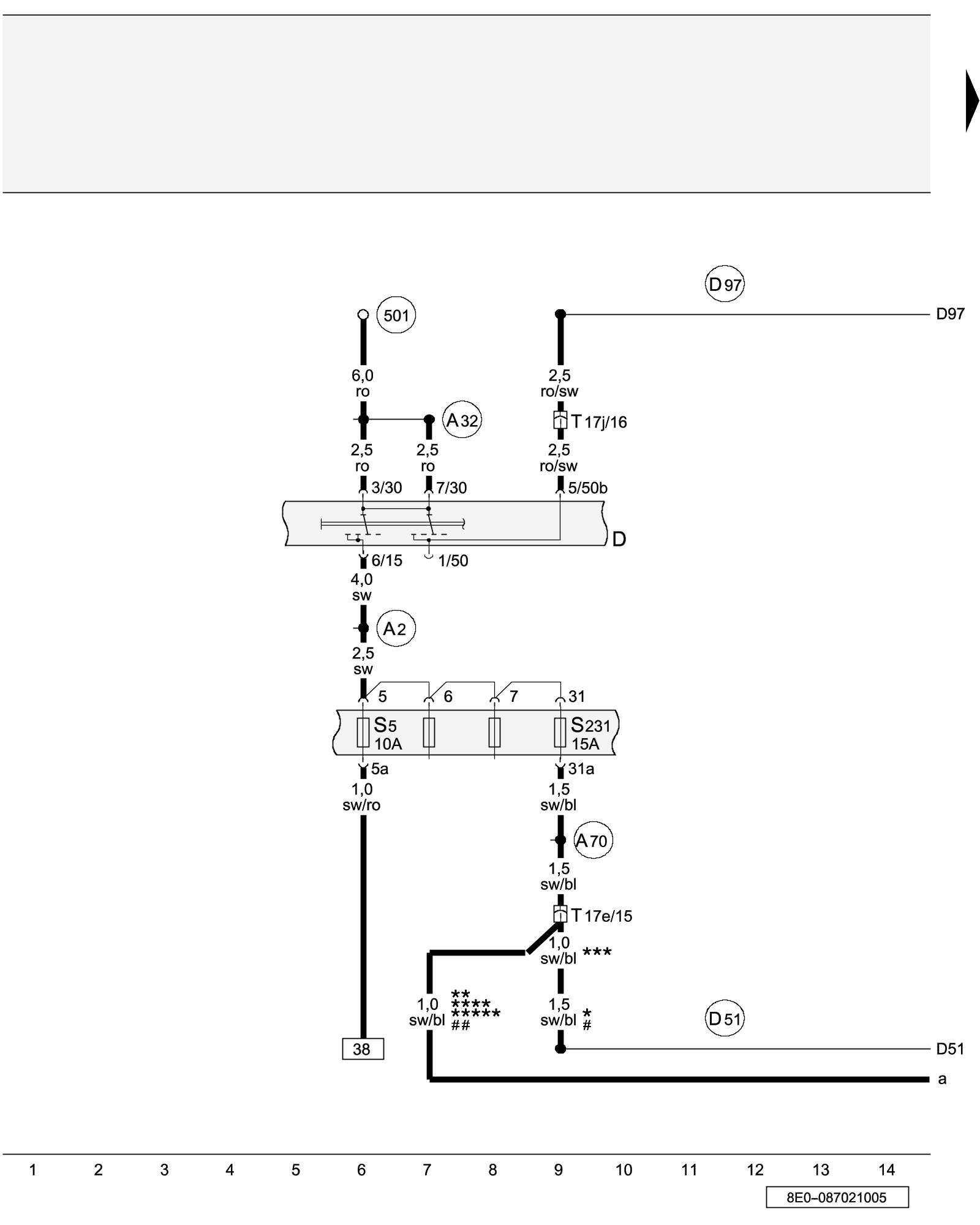
Ignition/Starter Switch, Fuses





ws = white
sw = black
ro = red
br = brown
gn = green
bl = blue
gr = grey
li = lilac
ge = yellow
or = orange
rs = pink

D - Ignition/Starter Switch

S5 - Fuse (on fuse/relay panel)

S231 - Fuse (on fuse panel)

T17e - 17-Pin Connector, white, connector station E-box, plenum chamber

T17j - 17-Pin Connector, brown, connector station E-box, plenum chamber

(501) - Threaded Connection 2 - terminal 30 (on relay panel)

(A2) - Plus Connection (15) (in instrument panel wiring harness)

(A32) - Plus Connection (30) (in instrument panel wiring harness)

(A70) - Connection (15a, Fuse 231) (in instrument panel wiring harness)

(D51) - Plus Connection (15) (in engine compartment wiring harness)

(D97) - Connection (50) (in right engine compartment wiring harness)

* - for engine code BLB, BNA, BRE, BRF, BVF only

** - for engine code AWA only

*** - for engine code BPW, BRC, BRE, BRF, BVF, BVG only

**** - for engine code BFB, ALT, BGB, BPG, BWE, BWT only

***** - for engine code BBJ only

# - for engine code BDG only

## - for for engine code AUK, BKH only

Next Diagram 93/3 (Tracks 15-28)